Zpět Zpět na výpis nemovitostí

Prodej domu rodinný 160 m² pozemek 450 m², Slušovice,Zlín,Zlínský kraj

Slušovice,Zlín,Zlínský kraj Zobrazit na mapě Zobrazit na mapě

Stav

Volný

Typ

Rodinný

Obytná plocha

160 m2

Plocha pozemku

450

Velikost

4 pokoje

Stav objektu

Projekt

9 520 000 Kč

Pohlídejte si cenu této nemovitosti Pohlídejte si cenu této nemovitosti

reo_watchdog_modal_header_title

bell

Pohlídejte si změny u této nemovitosti

Dáme vám vědět, ať už se změní cena nebo stav nemovitosti.

bell

O vaše data je u nás postaráno. Přečtěte si naše podmínky pro ochranu os. údajů.

Kalkulačka financování Kalkulačka financování

Spočítejte si, na kolik vás vyjde hypotéka

Spočítejte si, na kolik vás vyjde hypotéka

Spočítejte si, na kolik vás vyjde hypotéka

Nějaký zajímavý podnadpis

Více o této nemovitosti

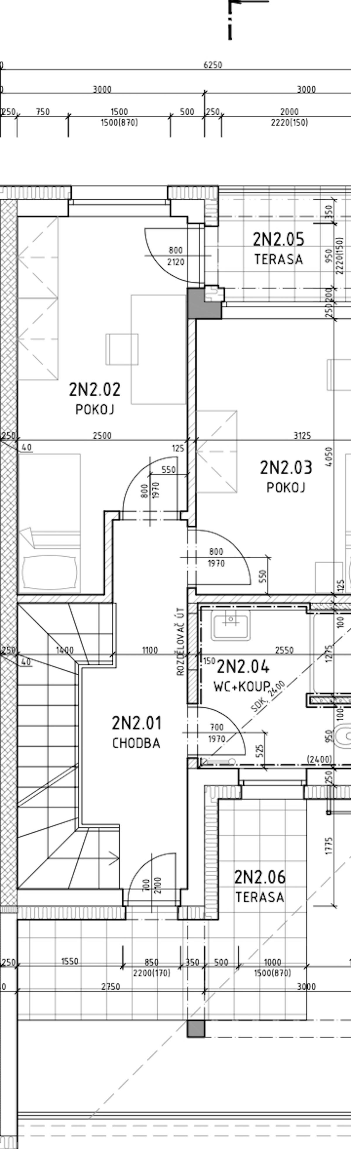
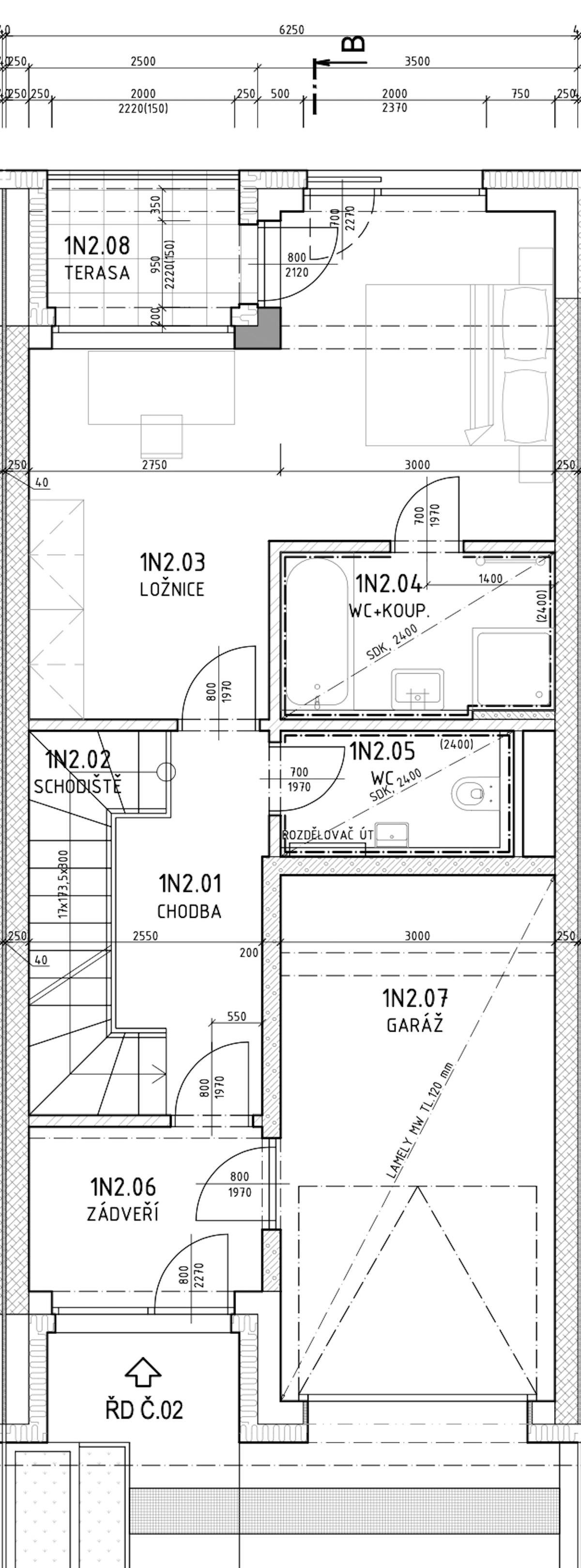
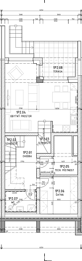
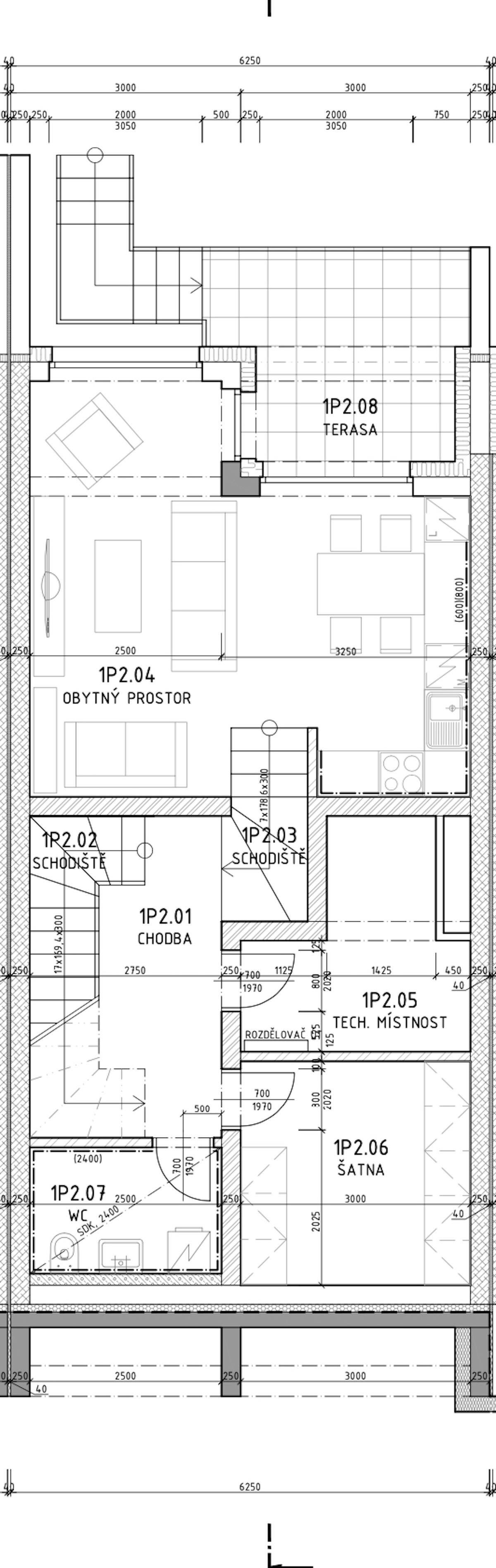
Nová výstavba - Slušovice Pod Sadem RD č. 2 Zprostředkujeme Vám výstavbu rodinného domu na klíč - RD č. 2 na pozemku s výměrou 450 m² ve Slušovicích. Projekt řeší stavbu celkem pěti dvoupodlažních řadových domů s jedním podzemím v ulici Pod Sadem ve městě Slušovice. Vstupy a vjezdy do garáží jsou ze strany západní, výstupy na terasy a na terén jsou na straně východní. Orientace ŘD umožňuje výhledy na dostihový areál a na město Slušovice. RD č. 2: - dispozice 4+kk - zastavěná plocha 124,73 m2 Užitná plocha: 162,47 + 40,51 (terasa) m2 1.PP 59,43 + 9,31 (terasa) m2 1.NP 64,49 + 3,71 (terasa) m2 2.NP 38,55 + 27,49 (terasa) m2 Součástí uvedené ceny je dům na klíč včetně DPH a pozemek. Bude se jednat o zděnou stavbu. V uvedené ceně můžete počítat s finálními povrchovými úpravami exteriéru i interiéru, a to včetně elektroinstalací, sanitárního vybavení s bateriemi, interiérovými dveřmi včetně obložek, podlahové vytápění tepelným čerpadlem. Doba výstavby 18 měsíců od vydání stavebního povolení. Stavba je od počátku řešena ve variantě na klíč až po kolaudaci. Každý dům je vybaven parkovacím stáním před garáží, odděleným pěším přístupem, malou předzahrádkou. Více informací u makléře. Pro komunikaci uvádějte evidenční číslo zakázky N109238.

Informace o nemovitosti

Stav

Volný

Typ smlouvy

Prodej

Typ nemovitosti

Dům

Další informace

Typ

Rodinný

Obytná plocha

160 m2

Plocha pozemku

450

Velikost

4 pokoje

Stav objektu

Projekt

Stavba

Cihlová

Typ domu

Patrový

Energetická náročnost budovy

G - Mimořádně nehospodárná

Parkování

Ano

Sklep

Ano

Garáž

Ano

Navigovat k nemovitosti Navigovat k nemovitosti

Máte zájem o tuto nemovitost?

Kontaktujte mě a domluvme se na prohlídce

Dejte nám vědět, s čím vám můžeme pomoct

Osobně s vámi projdeme každý detail

Preferovaný den prohlídky

Preferovaný čas prohlídky

Nejpozději do 24 hodin se ozveme nazpátek.

O vaše data je u nás postaráno. Přečtěte si naše podmínky pro ochranu os. údajů.

Děkujeme za váš zájem

Vaše informace jsme přijali a brzy se vám ozveme.

Váš požadavek byl úspěšně odeslán

Dejte nám vědět, s čím vám můžeme pomoct

Osobně s vámi projdeme každý detail

Podobné nemovitosti v naší nabídce

Mohlo by vás také zaujmout

Volný
Detail nemovitosti